(541) 419-9022
Sign Up Login

425 NE 146th Ave, Portland, OR 97230

$649,900

12 Total Photos [Click to View All]

Property Description

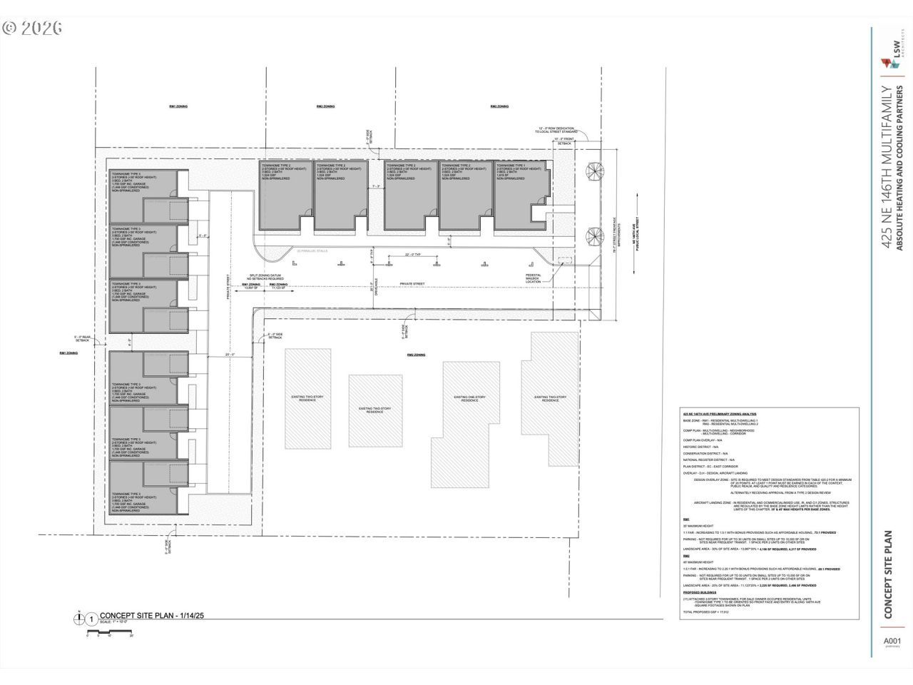
Prime development opportunity in NE Portland with strong infill potential. This property is being offered as a land value/development play with a preliminary fit test suggesting the potential for a 14-unit townhome project (8 smaller units and 6 larger units). Ideal for builders or investors looking for their next infill project in a growing area with strong resale demand.The existing structure on site is considered functionally obsolete and the property is best suited for redevelopment or rehab. Preliminary architectural concepts and fit test available for review to help illustrate the potential vision for the site. Buyer to perform all due diligence regarding zoning, density, utilities, and development feasibility.Conveniently located with access to major commuter routes, shopping, and amenities, this site presents a compelling opportunity for a developer to capitalize on new construction demand in the Portland market. Rare chance to acquire a project-ready site where much of the initial visioning work has already been completed. Bring your builder, investor, or development team - opportunities like this are limited. [Home Energy Score = 3. HES Report at https://rpt.greenbuildingregistry.com/hes/OR10232725]

425 NE 146th Ave | MLS# 342236782

This single family home located at 425 NE 146th Ave, Portland, OR 97230 is currently listed for sale with an asking price of $649,900. This property was built in 1948 and has 3 bedrooms and 1 full baths with 1352 sq. ft. Search Portland real estate on tinaroberts.bendpremierrealestate.com today.

Property Features

Property Type: Residential - Single Family
Fireplaces: 1
Fuel Type: Gas
Garage: 1
Heating: Forced Air
Home Style: 1 Story
Lot Size: 0.60 Acres
Roof Type: Composition
Stories: 1.0
Taxes: $4,851
Year Built: 1948
Square Feet: 1,352

Feature Descriptions

Bathroom: 1.0 (Main)
Days on Site: 26
Exterior: Wood Siding
Exterior: Workshop, Yard
Fireplace: Insert
Green Certification: Yes
Interior: Hardwood Floors, Vaulted Ceiling(s), Wall to Wall Carpet
Kitchen: Dishwasher, Free-Standing Range, Free-Standing Refrigerator
Parking Notes: Detached
Sewer: Public Sewer
Square Footage: 1052 (Main), 300 (Upper)
Water: Public Water

Local Schools

High School: Reynolds
Middle School: H.B. Lee
Elementary School: Glenfair

Listed By / Shown By

Listed By

Agency Name: Handris Realty Co.
Agency Phone: 503-657-1094

Shown By

Agent Name: Tina Roberts Broker
Agent Phone: (541) 419-9022
Agency Title: Bend Premier Real Estate

IDX logo

Estimate Your Payment

Estimated Payment

$ 3,880.05 per month $3,286.25 Principal & Interest $404.25 Property Tax $189.55 Homeowner's Insurance

Change Payment Information

%
years/fixed
yearly
yearly (est.)
(Payments are an estimate and may vary by lender)
Disclaimer: All information deemed reliable but not guaranteed. All properties are subject to prior sale, change or withdrawal. Neither listing broker(s) or information provider(s) shall be responsible for any typographical errors, misinformation, misprints and shall be held totally harmless. Listing(s) information is provided for consumers personal, non-commercial use and may not be used for any purpose other than to identify prospective properties consumers may be interested in purchasing. Information on this site was last updated 03/19/2026. The listing information on this page last changed on 03/19/2026. The data relating to real estate for sale on this website comes in part from the Internet Data Exchange program of Delta Media Group MLS (last updated Thu 03/19/2026 1:31:30 AM EST) or RMLS (last updated Thu 03/19/2026 1:29:17 AM EST) or COAR/MLSCO (last updated Thu 03/19/2026 1:21:23 AM EST). Real estate listings held by brokerage firms other than Bend Premier Real Estate may be marked with the Internet Data Exchange logo and detailed information about those properties will include the name of the listing broker(s) when required by the MLS. All rights reserved.

The content relating to real estate for sale on this web site comes in part from the IDX program of the RMLS of Portland, Oregon. Real estate listings held by other brokerage firms are marked with the RMLS logo, and detailed information about these properties includes the names of the listing brokers. Listing content is copyright © 2026 RMLS, Portland, Oregon. Some properties which appear for sale on this web site may subsequently have sold or may no longer be available.

Privacy Policy / DMCA Notice / ADA Accessibility

Login to My Homefinder

Pixel