(541) 419-9022
Sign Up Login
Refine Search

1592 Laura Vista NW Dr, Albany, OR 97321

$338,600

25 Total Photos [Click to View All]

Property Description

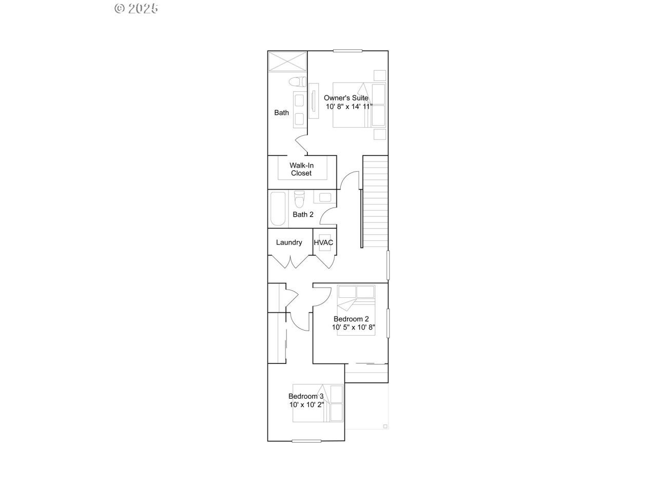
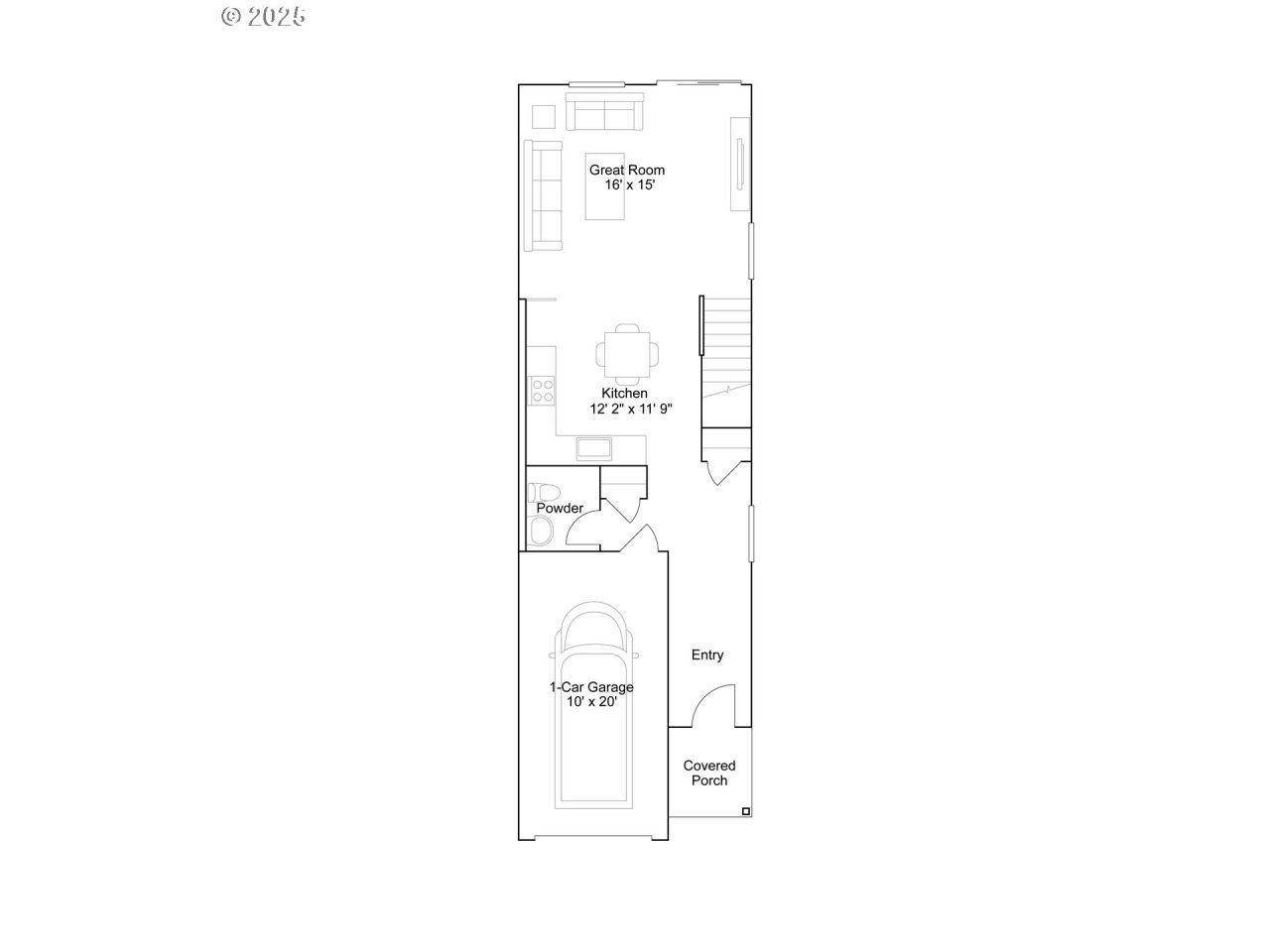
NEW PRICE! This new construction home is located in Riverwood Crossing, just a short distance to Gibson Hill Park, Golf Club of Oregon, and historic downtown Albany, with Oregon State University just 20 minutes away. The Reece plan features a functional two-story layout with an open-concept main floor that blends a modern kitchen and comfortable great room for everyday living. Upstairs, two secondary bedrooms share the space with a spacious primary suite that includes a full primary bath and walk-in closet. Interior highlights include quartz countertops, shaker-style cabinets, and LVP flooring in the kitchen and bathrooms, along with landscaping and fencing. This home also includes central air conditioning, a refrigerator, washer & dryer and window blinds. Located on homesite #25. MOVE-IN READY! Rendering is artist conception only. Photos are of a similar home, features and finishes will vary. Incentives available with the use of our preferred lender!

1592 Laura Vista NW Dr | MLS# 700188945

This townhouse located at 1592 Laura Vista NW Dr, Albany, OR 97321 is currently listed for sale with an asking price of $338,600. This property was built in 2025 and has 3 bedrooms and 2 full and 1 partial baths with 1472 sq. ft. Laura Vista NW Dr is located in the Riverwood Crossing subdivision. Search Riverwood Crossing real estate on tinaroberts.bendpremierrealestate.com today.

Property Features

Property Type: Residential - Townhouse
Basement: Crawl Space
Cooling: Central Air, Heat Pump
Fenced: Yes
Fuel Type: Electricity
Garage: 1 car attached
Heating: Heat Pump
Home Style: Craftsman, Townhouse
Lot Size: 0.07 Acres
Roof Type: Composition, Shingle
Stories: 2.0
Year Built: 2025
Square Feet: 1,472

Feature Descriptions

Accessibility: Garage on Main, Walk-in Shower
Bathroom: 0.1 (Main), 2.0 (Upper)
Days on Site: 236
Exterior: Fenced, Porch, Sprinkler, Yard
Exterior: Oriented Strand Board
HOA Fee: Fee 1 - $165.00 (Monthly)
Home Warranty: BuilderWarranty
Hot Water: Electricity, Tank
Interior: Laundry, LuxuryVinylPlank, Quartz, Sprinkler, Wall to Wall Carpet, Washer-Dryer
Kitchen: Dishwasher, Disposal, Free-Standing Range, Free-Standing Refrigerator, Plumbed For Ice Maker, Quartz, Stainless Steel Appliance(s)
Lot: Level
Parking Notes: Attached, Driveway, OnStreet
Sewer: Public Sewer
Special View Info: Territorial
Square Footage: 620 (Main), 852 (Upper)
Water: Public Water

Local Schools

High School: West Albany
Middle School: North Albany
Elementary School: Oak Grove

Listed By / Shown By

Listed By

Agency Name: Lennar Sales Corp
Agency Phone: 503-476-3846

Shown By

Agent Name: Tina Roberts Broker
Agent Phone: (541) 419-9022
Agency Title: Bend Premier Real Estate

IDX logo

Estimate Your Payment

Estimated Payment

$ 1,810.90 per month $1,712.15 Principal & Interest $0.00 Property Tax (data not provided by mls) $98.76 Homeowner's Insurance

Change Payment Information

%
years/fixed
yearly
yearly (est.)
(Payments are an estimate and may vary by lender)
Disclaimer: All information deemed reliable but not guaranteed. All properties are subject to prior sale, change or withdrawal. Neither listing broker(s) or information provider(s) shall be responsible for any typographical errors, misinformation, misprints and shall be held totally harmless. Listing(s) information is provided for consumers personal, non-commercial use and may not be used for any purpose other than to identify prospective properties consumers may be interested in purchasing. Information on this site was last updated 03/19/2026. The listing information on this page last changed on 03/19/2026. The data relating to real estate for sale on this website comes in part from the Internet Data Exchange program of Delta Media Group MLS (last updated Thu 03/19/2026 1:31:30 AM EST) or RMLS (last updated Thu 03/19/2026 1:29:17 AM EST) or COAR/MLSCO (last updated Thu 03/19/2026 1:21:23 AM EST). Real estate listings held by brokerage firms other than Bend Premier Real Estate may be marked with the Internet Data Exchange logo and detailed information about those properties will include the name of the listing broker(s) when required by the MLS. All rights reserved.

The content relating to real estate for sale on this web site comes in part from the IDX program of the RMLS of Portland, Oregon. Real estate listings held by other brokerage firms are marked with the RMLS logo, and detailed information about these properties includes the names of the listing brokers. Listing content is copyright © 2026 RMLS, Portland, Oregon. Some properties which appear for sale on this web site may subsequently have sold or may no longer be available.

Privacy Policy / DMCA Notice / ADA Accessibility

Login to My Homefinder

Pixel